| FKN12-12(R)压气式负荷开关 | |
|
FKN12-12(R)压气式负荷开关(熔断器组合电器)概述
FKN12- 12D/630- 20型户内交流高压负荷开关(以下简称FKN12 - 12D负荷开关)是额定电压为12KV,额定频率为50HZ的三相高压开关设备,用于分合负荷电流,闭环电流,空载变压器和电缆充电电流,关合短路电流。配装接地开关的负荷开关,可以承受短路电流。
它可以可靠开断直至短路电流的任何电流:负荷开关开断工作电流,熔断器开断短路电流,联合开断工作电流与全短路电流之间的任何过电流,同时熔断器通过其摘击器使负荷开关分闸。
FKN12-12(R)压气式负荷开关(熔断器组合电器)型号含义
FKN12-12(R)压气式负荷开关(熔断器组合电器)主要技术参数
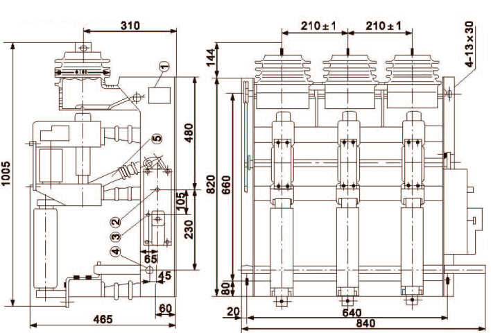
FKN12-12(R)压气式负荷开关(熔断器组合电器)外形安装尺寸
|
|